Våre prosjekter
Medarbeidere
Bærekraft
Nyheter
Stovner Torg
Boligvelger
1-roms
Fellesområder
OsloBolig
Galleri
Dokumenter
Meld interesse
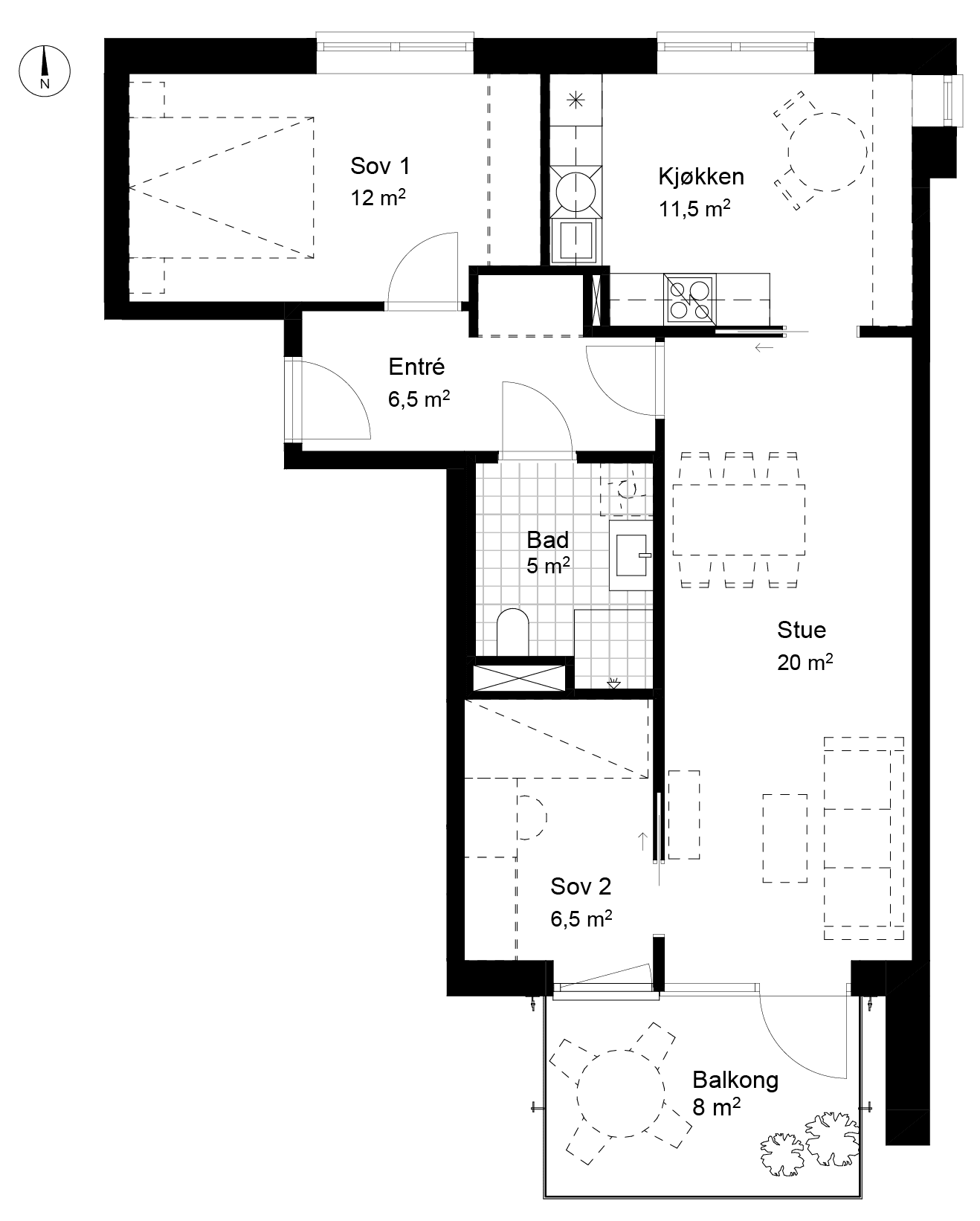
B-0303
Meld interesse
Kjøp
Status
Ledig
Pris
6 500 000
Etasje
3
Ant. rom
3
BRA m²
69
BRA-i m²
64
BRA-e m²
5
TBA m²
8
Innskudd
2 600 000
Fellesgjeld
3 900 000
Omkostninger
Totalpris
6 550 880
Utsikt fra balkong
Meld interesse i dag og ta gjerne kontakt med en av våre meglere for å få vite mer!
Fyll inn navn
Fyll inn telefonnummer
Fyll inn e-post
Jeg ønsker å bli kontaktet i samtykke med denne
personvernerklæringen
Send
Kontakt megler
Powered by Plyo
Tilbake til Bygg B