Våre prosjekter
Medarbeidere
Bærekraft
Nyheter
Stovner Torg
Boligvelger
1-roms
Fellesområder
OsloBolig
Galleri
Dokumenter
Meld interesse
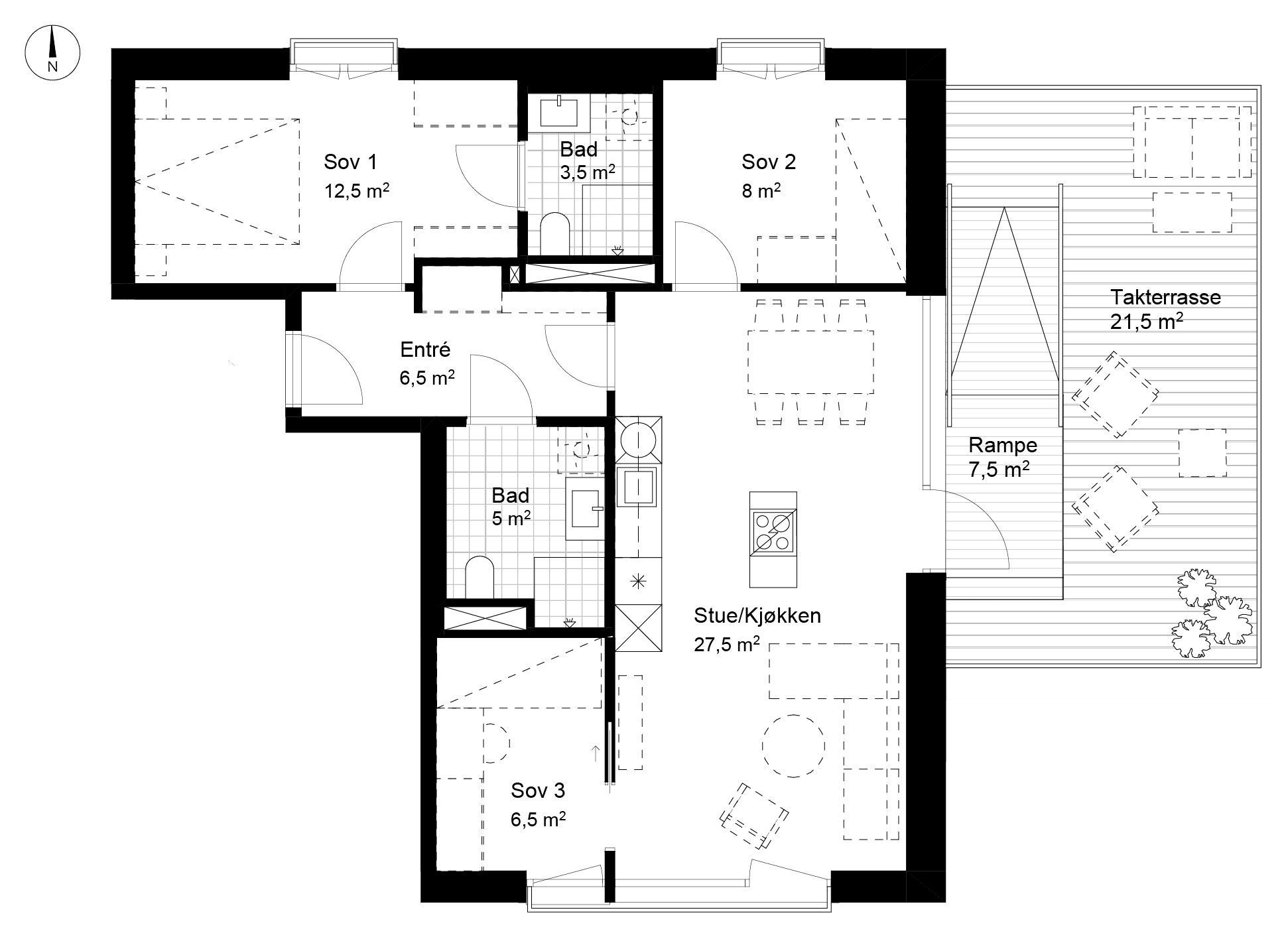
A-0702
Meld interesse
Kjøp
Status
Ledig
Pris
10 500 000
Etasje
7
Ant. rom
4
BRA m²
78
BRA-i m²
73
BRA-e m²
5
TBA m²
21
Innskudd
4 200 000
Fellesgjeld
6 300 000
Omkostninger
Totalpris
10 555 370
Utsikt fra balkong
Meld interesse i dag og ta gjerne kontakt med en av våre meglere for å få vite mer!
Fyll inn navn
Fyll inn telefonnummer
Fyll inn e-post
Jeg ønsker å bli kontaktet i samtykke med denne
personvernerklæringen
Send
Kontakt megler
Powered by Plyo
Tilbake til Bygg A