Våre prosjekter
Medarbeidere
Bærekraft
Nyheter
Templates
BOLIGVELGER
DOKUMENTER
FELLESOMRÅDER
BELIGGENHET
GALLERI
BOOK VISNING
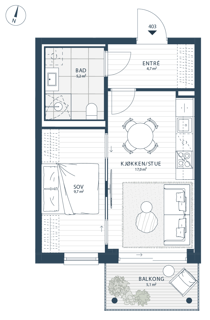
C403
Solgt
Status
Solgt
Totalpris
Pris
TBA m²
5
Soverom
1
BRA
41,5
BRA-i
39
BRA-e
2,5
Etasje
4
Parkeringsplass
Ta kontakt med megler ved interesse
Omkostninger
Fellesutgifter
Dokumenter
Last ned kontraktstegning
Leilighet C-403
Se utsikt
Fasade og solforhold
Meld interesse
Fyll inn navn
Fyll inn telefonnummer
Fyll inn e-post
Jeg ønsker å bli kontaktet i samtykke med denne
personvernerklæringen
Send
Powered by Plyo
Tilbake til Forhåndssalg