Våre prosjekter
Medarbeidere
Bærekraft
Nyheter
BOLIGVELGER
DOKUMENTER
FELLESOMRÅDER
BELIGGENHET
GALLERI
BOOK VISNING
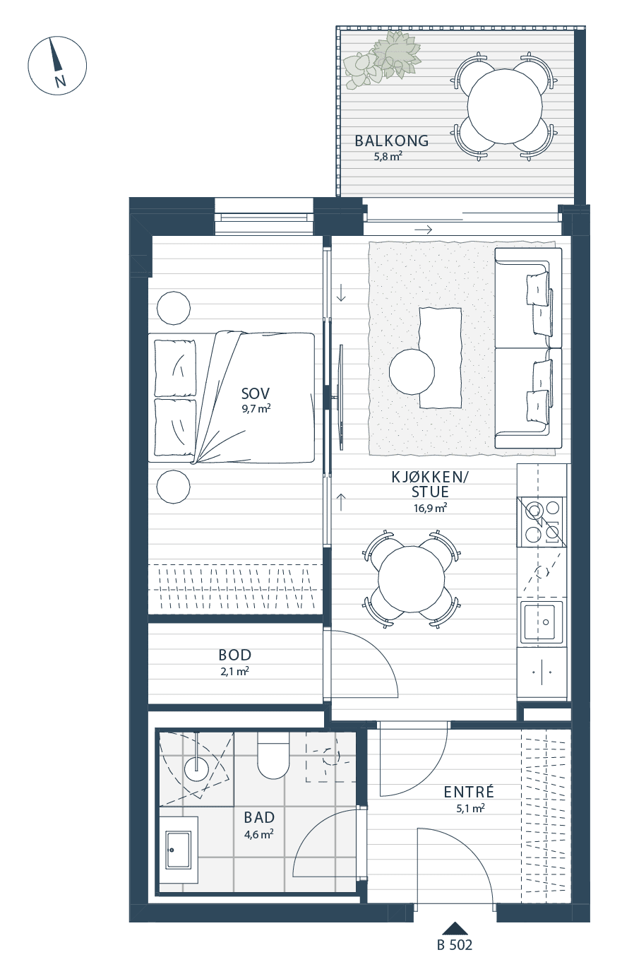
AB-502
Solgt
Status
Solgt
Totalpris
Pris
TBA m²
5
Soverom
1
BRA
44
BRA-i
41
BRA-e
3
Etasje
5
Parkeringsplass
Ta kontakt med megler ved interesse
Omkostninger
Fellesutgifter
Dokumenter
Last ned kontraktstegning
B-502
B-502 03.03.2026
Se utsikt
Fasade og solforhold
Meld interesse
Fyll inn navn
Fyll inn telefonnummer
Fyll inn e-post
Jeg ønsker å bli kontaktet i samtykke med denne
personvernerklæringen
Send
Powered by Plyo
Tilbake til Boligvelger