Våre prosjekter
Medarbeidere
Bærekraft
Nyheter
Sva
Boligvelger
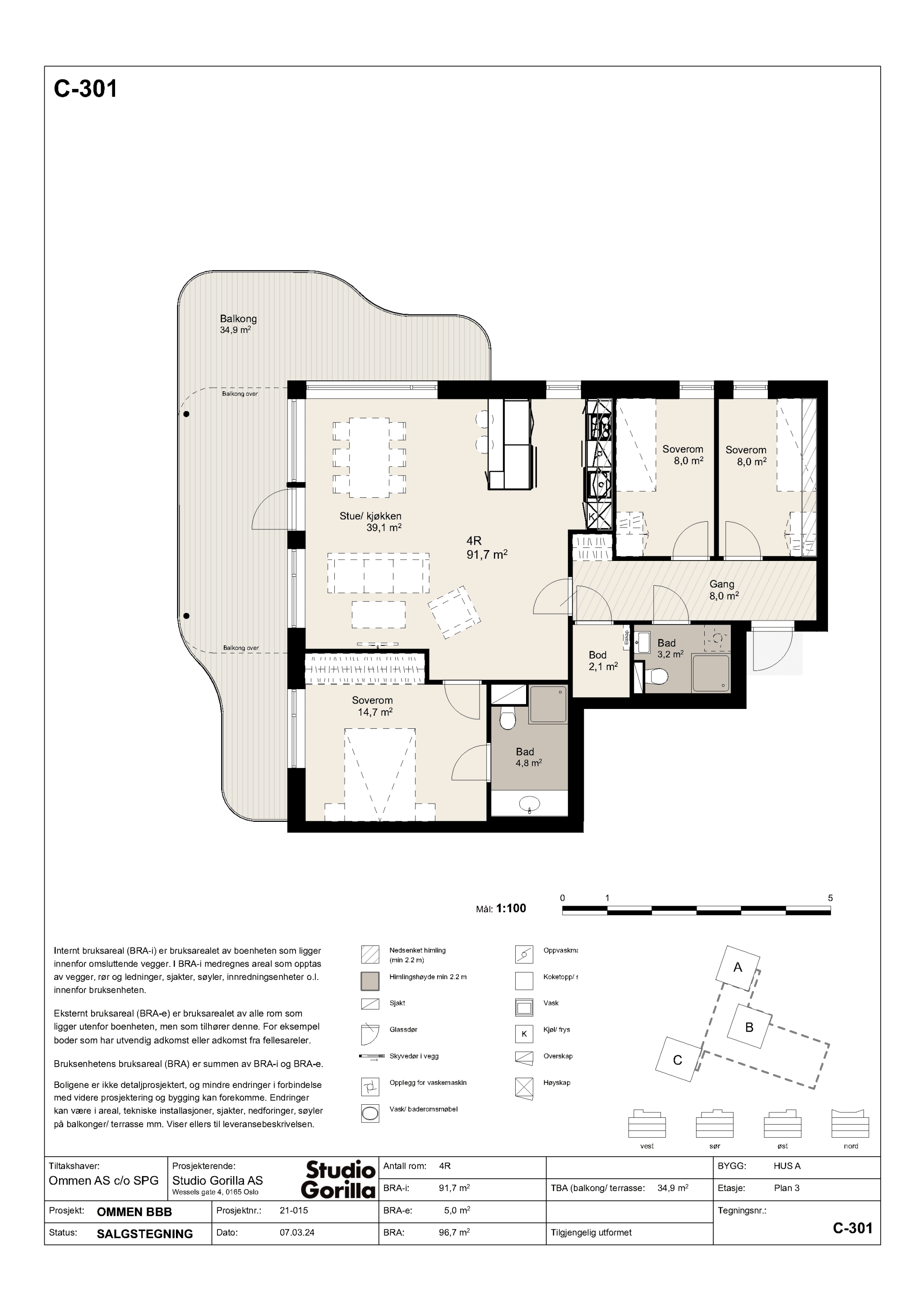
C301
Solgt
Pris
BRA-i m²
91
Etasje
3
Uteplass m²
34
Antall rom
4
Est. felleskost.
Last ned plantegning
Bod i kjeller
Garasjeplass
Est. omkostninger
Meld interesse
Fyll inn navn
Fyll inn telefonnummer
Fyll inn e-post
Jeg ønsker å bli kontaktet i samtykke med denne
personvernerklæringen
Send
Powered by Plyo
Tilbake til Boligvelger