Våre prosjekter
Medarbeidere
Bærekraft
Nyheter
Sva
Boligvelger
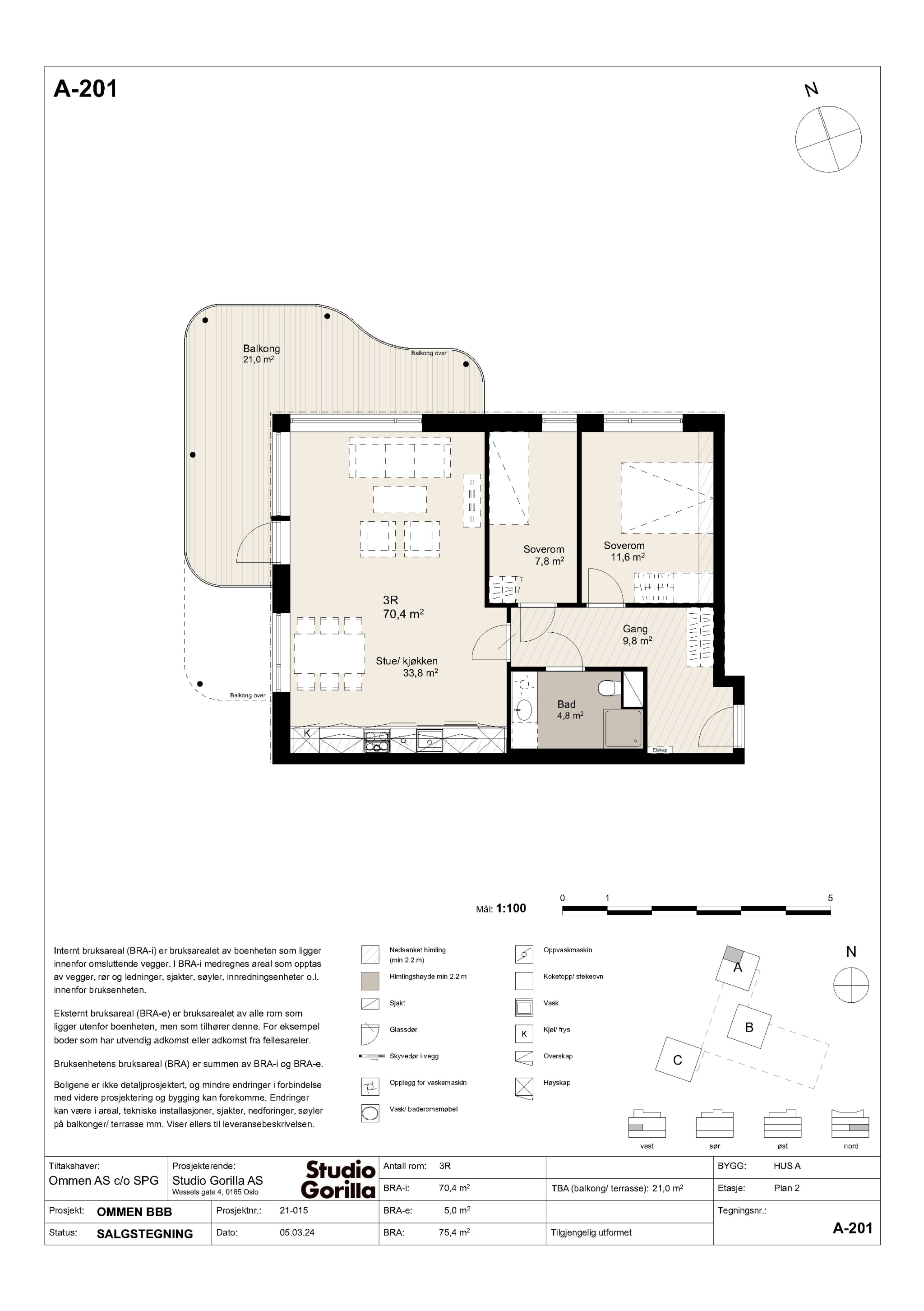
A201
Solgt
Pris
BRA-i m²
70
Etasje
2
Uteplass m²
21
Antall rom
3
Est. felleskost.
Last ned plantegning
Bod i kjeller
Garasjeplass
Est. omkostninger
Meld interesse
Fyll inn navn
Fyll inn telefonnummer
Fyll inn e-post
Jeg ønsker å bli kontaktet i samtykke med denne
personvernerklæringen
Send
Powered by Plyo
Tilbake til Boligvelger